To better protect maintenance personnel, the company’s original KYN28 center cabinet shutter mechanism has been optimized to enhance its self locking function. When the handcart is puled out of the cabinet, maintenance personnel can lock the door, blocking access to the contact box and stationary contacts, preventing electrical shock due to misuse.This mechanism, based on the KYN28 switchgear, increases the self-locking function. The process works as follows: When the handcart is removed from the cabinet, No.1 rotates counterclockwise around No.4 due to the tension spring, causing No 3 to move to the right which blocks No.7. when the handcart pushed back into the cabinet, No. rotates clockwise around No.4 due to the handcart’s movement, causing No.3 to move to the left, unlocking No.7 and allowing normal operation.

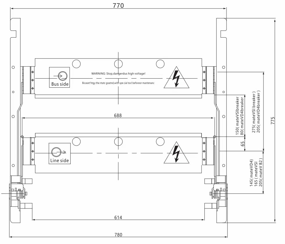
In modern electrical power distribution systems, operator safety and equipment reliability are critical. The (800mm mid-placed switchgear cabinet) shutter mechanism 5EB.320.010.2 is a precision-engineered component designed to enhance the safety, efficiency, and operational reliability of medium-voltage switchgear.
This shutter mechanism is widely used in industrial plants, commercial facilities, and utility networks, ensuring secure operation of high-voltage electrical systems. Its main purpose is to prevent accidental contact with live components, provide controlled access, and ensure compliance with electrical safety standards.
A shutter mechanism in a switchgear cabinet is a mechanical safety device that prevents direct contact with energized parts until the system is in a safe condition. For mid-placed switchgear cabinets, such as the 800mm variant, the mechanism is strategically positioned to cover live busbars and components within the cabinet.
Key functions of a shutter mechanism include:
Preventing unauthorized or unsafe access
Interlocking doors and shutters to enforce operational sequences
Enhancing personnel safety during maintenance and operation
Protecting sensitive equipment from accidental damage
The 5EB.320.010.2 model is specifically designed for mid-placed 800mm switchgear cabinets, ensuring precise interlocking and consistent protection.
The 5EB.320.010.2 shutter mechanism offers a range of advanced features designed for medium-voltage switchgear applications:
Cabinet Size Compatibility: 800mm mid-placed switchgear cabinet
Robust Mechanical Design: Ensures long service life and high operational reliability
Precision Interlocking: Prevents unSafe Operations and accidental contact with live parts
Durable Materials: Made from high-strength steel and insulated polymers to withstand wear
Compact Layout: Fits seamlessly within mid-placed switchgear cabinets
Compliance with Standards: Adheres to IEC and local electrical safety regulations
High Performance: Ensures consistent shutter operation during repeated use
These features make it an essential safety component for modern indoor switchgear systems.
Typical technical specifications for the 5EB.320.010.2 shutter mechanism include:
Cabinet Compatibility: 800mm mid-placed switchgear
Component Type: shutter mechanism interlocking
Voltage Rating: 12kV medium-voltage switchgear
Operating Temperature: -10°C to +50°C
Mechanical Life: Exceeds 20,000 operations
Interlocking Precision: ±0.1mm
Material Composition: High-strength steel, insulating polymers
Mounting Type: Fixed within indoor switchgear cabinets
These specifications ensure reliable operation, safety, and long-term durability in various industrial environments.
The shutter mechanism interlocking system in a mid-placed switchgear cabinet functions by blocking access to live components until safe operating conditions are met.
Default Closed Position: Covers all live components to prevent accidental contact.
Interlocked Operation: Only allows access when circuit breakers or other Switchgear Components are in a safe state.
Sequential Access Control: Ensures proper operational sequences, preventing unsafe actions.
Automatic Reset: After operation, the shutter returns to its default protective position to maintain ongoing safety.
This ensures both operator safety and equipment protection during maintenance and switching operations.

By blocking direct contact with energized parts, the mechanism significantly reduces the risk of electrical accidents.
The robust design guarantees consistent and precise operation, minimizing errors and downtime.
Meets IEC 62271 and other international medium-voltage switchgear safety standards.
High-quality materials and precise engineering ensure a long service life and reduced maintenance needs.
Minimal wear and tear reduces replacement frequency and operational costs.
The 5EB.320.010.2 shutter mechanism is suitable for a variety of medium-voltage switchgear applications, including:
Industrial Plants: Factories requiring safe and reliable electrical distribution.
Power Utilities: Substations ensuring personnel safety during operation and maintenance.
Commercial Buildings: Large office complexes and shopping centers.
Renewable Energy Installations: Solar and wind power plants needing high-voltage protection.
Transportation Infrastructure: Airports, railway stations, and metro systems with electrical distribution needs.
Its versatility makes it an ideal choice for any 800mm mid-placed indoor switchgear cabinet.
Proper installation ensures maximum safety and efficiency:
Check Compatibility: Confirm the 5EB.320.010.2 is suitable for your 800mm mid-placed cabinet.
Secure Mounting: Fix the mechanism as per manufacturer instructions.
Alignment Verification: Ensure shutters fully cover live components.
Operational Testing: Conduct trial operations to confirm interlocking functionality.
Routine Inspection: Regularly check for misalignment, wear, or mechanical issues.
Correct installation guarantees safe and reliable switchgear operations.
Although designed for long-term durability, periodic checks improve reliability:
Inspect for mechanical wear or damage
Lubricate moving parts as necessary
Test interlocking functions monthly
Ensure shutter alignment remains precise
Replace worn or damaged parts promptly
Proper maintenance ensures continuous protection and optimal performance.
Compared to alternative interlocking solutions:
Mechanical shutters: Provide direct physical protection and high reliability.
Electrical interlocks: May fail during power outages or electrical faults.
Hybrid systems: Combine mechanical and electrical interlocks but often increase cost.
The 5EB.320.010.2 offers an ideal balance of safety, reliability, and cost-efficiency for mid-placed switchgear cabinets.
The field of switchgear interlocking is evolving with technology:
IoT Integration: Real-time monitoring for predictive maintenance
Digital Interlocking Systems: Enhanced operational diagnostics
Modular Designs: Compact solutions for urban substations
Advanced Materials: Longer life and higher durability for shutter mechanisms
Despite these innovations, the 5EB.320.010.2 remains a critical safety device in medium-voltage switchgear.
The (800mm Mid-placed Switchgear Cabinet) Shutter Mechanism 5EB.320.010.2 is a vital component in medium-voltage switchgear systems. Its robust mechanical design, precise interlocking, and adherence to safety standards provide reliable protection for operators and equipment.
For industrial, commercial, and utility applications, the 5EB.320.010.2 offers a safe, efficient, and durable solution for managing high-voltage electrical distribution in indoor switchgear cabinets.
Phone: +8613736779975
E-mail: sales@vcbbreaker.com
Address: 66 Punan Road, Yueqing Economic Development Zone, Zhejiang, China
Copyright © 2025 Eberry Electric Group All rights reserved
This website uses cookies to ensure you get the best experience on our website.